Get all your news in one place.
100’s of premium titles.
One app.
Start reading
The Guardian - UK
The Guardian - UK
National
Damien Gayle

London property developer pays £180k to keep basement swimming pool

Marc Samuels’ home in Hampstead Garden Suburb
Marc Samuels’ home in Hampstead Garden Suburb, under which he built a swimming pool and gym without permission from the council. Photograph: Nigel Sutton

A property developer who excavated a vast basement gym and swimming pool complex under his £3m north London home far in excess of his planning application has been allowed to keep it by paying £180,000 to settle out of court.

Marc Samuels paid Hampstead Garden Suburb Trust the money, plus a contribution to legal costs, after it threatened to obtain a high court injunction to force him to fill in the basement, the Ham&High newspaper reported.

Barnet council retrospectively granted Samuels permission for the basement last month.

Samuels, who bought the property in 2007 for £2.9m, had originally applied to build a single-storey basement “of similar size to the proposed house footprint plus additional rear area for the proposed pool”, which stretched beneath his garden.

Marc Samuels
Marc Samuels.

The council and the trust, which rules on every development in the Hampstead Garden Suburb conservation area, granted permission for the work in 2012.

But when Samuels constructed the basement, he stretched it further into the garden, adding 56 sq metres to the original plan to accommodate a “garden room”, alongside a cinema, au pair’s room and study. The proposed pool was dropped down a further level into a 113 sq-metre sub-basement, and was joined by a gym.

Samuels’ building works created a two-storey basement area that stretched an additional 169 sq metres beyond the space he had originally applied for permission to build. He also replaced four approved ventilation grilles with skylights.

Hampstead Garden Suburb Trust has strict rules concerning alterations to homes in the area and, when Samuels’ breach of permission came to light, it consulted lawyers about obtaining an injunction to force him to reverse the development.

Trust officials claimed they were advised to seek an out-of-court settlement for “technical reasons”, the Ham&High reports.

Richard Wiseman, the chairman of the trust, told the paper his organisation’s normal response would have been to seek an injunction, but it was able to reach an accommodation with Samuels.

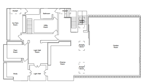
Floor plan
The plan of the first basement floor at the home, showing the au pair’s room and cinema. A second sub-basement floor containing a swimming pool and gym is directly under the garden room.

“The trust can now announce that the matter has been settled for £180,000. This figure is based on the estimate of the enhanced value of the house, making appropriate allowance for the cost of construction and litigation risk,” Wiseman said.

“The resident has also made a contribution towards the trust’s legal fees. While the trust condemns the action of the resident, it acknowledges the spirit of cooperation with which he has dealt with the matter.”

Granting retrospective permission for the extension, Barnet council’s planning report ruled that it did not “result in any material visual changes at ground level and above, from the approved scheme”.

“It is therefore concluded that the completed amendments would have no effect on the qualities of [the home] and would protect the character of the Area 13 ‘Holne Chase and Norrice Lea’ of the Hampstead Garden Suburb Conservation Area,” it added.

Following the dispute with Samuels, the trust has published on its website a proposal for new rules over basement excavations in the Hampstead Garden Suburb. They stipulate that new basements should not descend deeper than a single storey nor extend beyond the original footprint of the house.

A Barnet council spokesperson, said: “We consider any planning application based on its merits and in accordance with our planning policies. In this particular case, a retrospective planning application was submitted and, after careful consideration, we noted that there was no material change to the ground level or above, so the application was approved.”

“The Hampstead Garden Suburb Trust is a separate organisation to Barnet council, with its own legal powers to control developments within Hampstead Garden Suburb. Any out of court settlement is a civil matter between the Trust and Mr Samuels.”

Sign up to read this article
Read news from 100’s of titles, curated specifically for you.
Already a member? Sign in here
Related Stories
Top stories on inkl right now
One subscription that gives you access to news from hundreds of sites
Already a member? Sign in here
Our Picks
Fourteen days free
Download the app
One app. One membership.
100+ trusted global sources.