Get all your news in one place.
100’s of premium titles.
One app.
Start reading
The Guardian - UK
The Guardian - UK
Lifestyle
Jonathan Jones

Damien Hirst's superbasement is a new low

Isn’t it awful when your house isn’t big enough … Damien Hirst’s home.
Isn’t it awful when your house isn’t big enough … Damien Hirst’s home. Photograph: Isabel Infantes/SWNS.com

I’ll say one thing for Damien Hirst. He has an eye for a nice house. A nice Nash house, to be precise. Hirst’s London home is a magnificent Grade I listed classical creation by the regency architect John Nash. It even has a Greek temple-style pediment with a mythological frieze.

Now Hirst has got planning permission to create a huge basement under his gorgeous urban lair, in which to house his art collection.

The saddest thing about this story is that it could be about any rich man.

The £39.5m property, the plan to excavate a superbasement – it’s just another story about the super-rich takeover of London. Even having a big art collection does not make Hirst any different from the people who buy his work. He’s just a bit more lavish about it, building a gallery to show off his stuff.

This is especially depressing, because Hirst was an artist once. He came on like the new Picasso, or at least the new Duchamp. It makes me angry that Hirst has turned out to be so boring when he once seemed so exciting.

If you are one of those people who always “saw through” Hirst, good for you. I myself was inspired and thrilled when I first saw his shark swim towards me in 1991. It woke me up to contemporary art, because it really seemed to have urgency and say something about fear, death, and the world we swim through. There was a chainsaw energy about early Hirst that still makes him the most significant artist of his generation.

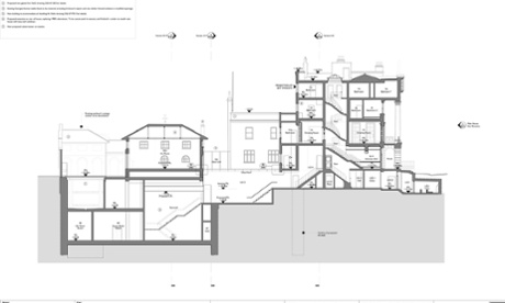
The plans for development works at artist Damien Hirst's house opposite Regent's Park, London.
Plans for development works at Damien Hirst’s London home. Photograph: Purcell

Then it spluttered and failed. The animal vitrines became sillier, the dot paintings merged into the decor. He started to paint “real” figurative paintings and revealed that the emperor really has got no clothes.

Hirst is now getting credit for what you might call his post-artistic career. There seems to be a consensus that his Newport Street gallery is beautiful and benevolent – though personally I can’t get that thrilled about the John Hoyland paintings he has chosen to fill it with.

But that’s not the point. The problem is that Hirst looked like an artist once. He walked and talked like one. But there is nothing dangerous or visionary about owning a massive Regency house with a superbasement.

No true artist would care about getting and spending money like Hirst does. I have met extremely rich artists who live modest ordinary lives because what matters to them is their work – the art itself. Their money just helps them to go on painting or creating monuments in far-off deserts or whatever drives them.

Hirst, it seems, has no such obsessive need to make art. The art was a game he played and now he’s playing a new game. He is a living parable. Do you want to be an artist? Or do you just want money and fame?

Hirst can afford to buy any painting he wants. But he himself is no artist. He does not even pretend to be one any more.

Sign up to read this article
Read news from 100’s of titles, curated specifically for you.
Already a member? Sign in here
Related Stories
Top stories on inkl right now
One subscription that gives you access to news from hundreds of sites
Already a member? Sign in here
Our Picks
Fourteen days free
Download the app
One app. One membership.
100+ trusted global sources.